Zukunftszentrum für Deutsche Einheit und Europäische Transformation, Halle an der Saale
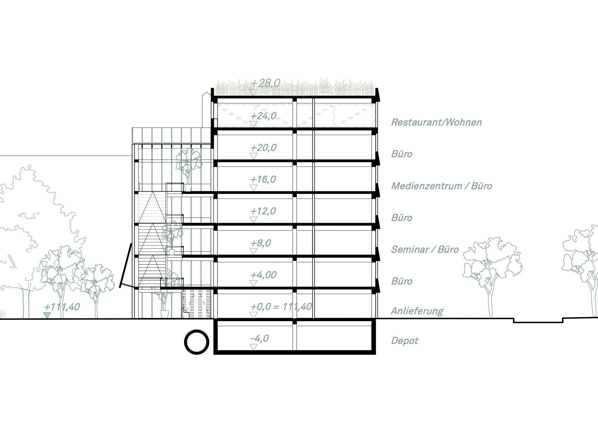
Garten der Demokratie> Säen, Wachsen, Pflegen, Ernten und wieder von vorne…die Prozesse des Gärtners scheinen sinnbildlich für die notwendigen Prozesse der Demokratie zu stehen. Forschung, Kultur und Dialog sind drei Werkzeuge, die die Demokratie am Leben halten und sie immer wieder erneuern.Der ‚Garten der Demokratie‘, der neue Park am östlichen Rand Halles, ist das Herz der Neuentwicklung des Riebeckplatzes. Das Zukunftszentrum bespielt diesen Park und der Park das Haus. Dank der transparenten Architektur verweben sich Innen und Außen miteinander. Das Forum ist die Orangerie dem auch die horizontale und vertikale Erschließung des Hauses stattfindet.
Wettbewerb 2024
Bauherrin
BMWSB
Landschaftsarchitektur
Rabe Landschaften
Mitarbeit
Johanna Hofmann, Felix Schmitz, Lisa Schrick







































